Sunrise Villas
Đảo Nhân Tạo Đa Phước, Đà Nẵng
Thể Loại : Biệt Thự Liên Kế
Chủ Đầu Tư : Novaland
Thiết Kế : Phạm Dũng
Kết Cấu : Mạnh Dũng
Năm : 2016
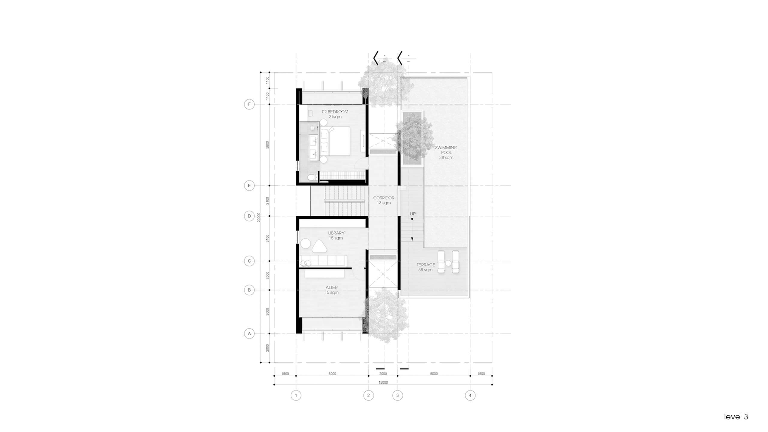
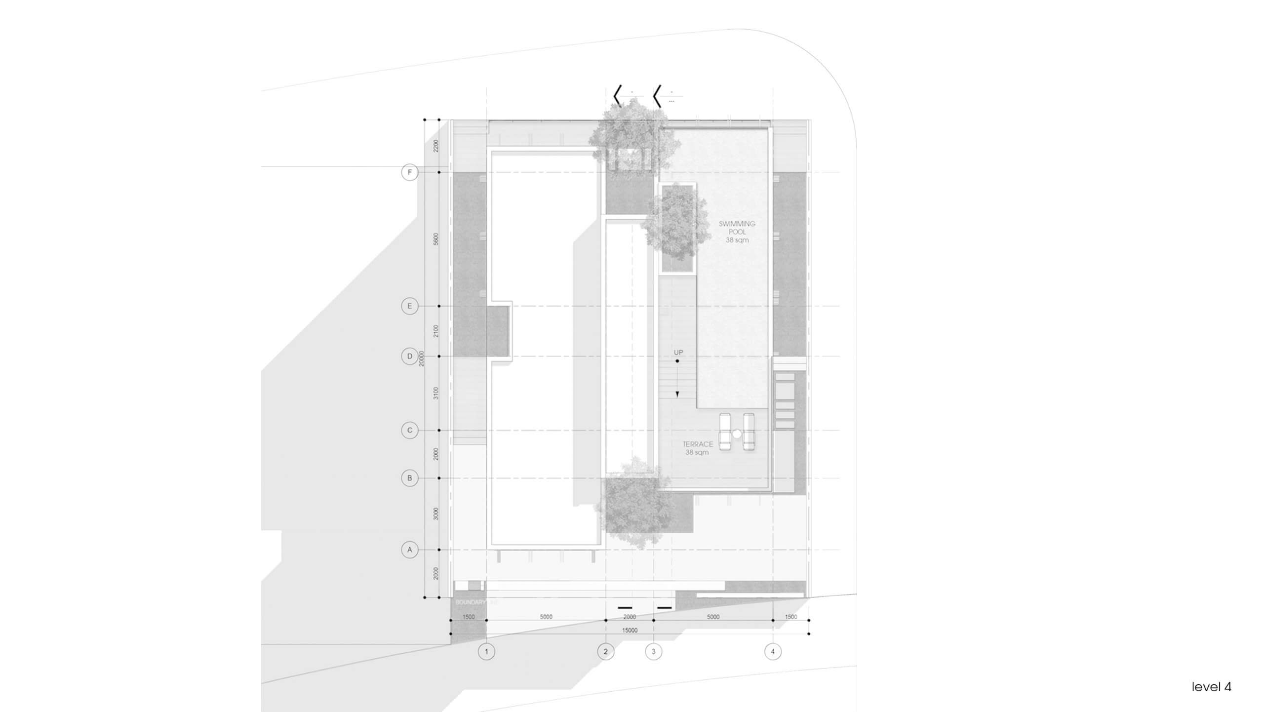
Thuyết Minh
Dự án thuộc về khí hậu miền biển với đặc điểm nhiều nắng, gió và nhiệt độ cao vào mùa hè. Chúng tôi chú trọng giải quyết vấn đề nhiệt khí hậu nhằm mục đích khắc phục sự bất lợi của thời tiết, mang đến trải nghiệm sử dụng dễ chịu nhất.
Giải pháp đưa ra là sử dụng lại hệ cửa lá sách kết hợp với 1 khoảng đệm vốn xuất hiện từ thời kỳ kiến trúc đông dương do các kiến trúc sư thời bấy giờ phát kiến. Đây là một khoảng đệm cách nhiệt của không gian bên trong và bên ngoài, nắng và hơi nóng sẽ được triệt tiêu ở đây nhưng gió biển mát mẽ vẫn có thể đi vào nhà với một tỉ lệ tiết chế phù hợp. Kế tiếp chúng tôi bố trí không gian hành lang theo phương ngang lẫn phương đứng tạo ra một đường bẫy gió để gió có thể len lỏi đến mọi ngóc ngách trong ngôi nhà.
Khối nhà thay vì nằm trên mặt đất như thường lệ, chúng tôi tư duy theo hướng ngược lại nâng lên khỏi mặt đất bởi lẽ bối cảnh quy hoạch nơi đây là một khu đảo nhân tạo , yếu tố thiên nhiên và sự rộng lớn của tầm nhìn ra biển phải được ưu tiên. Công trình kiến trúc là một thực thể xuất hiện sau, thế nên tôn trọng thiên nhiên là điều cần thiết. Không gian sân vườn tiếp nối hồ nhân tạo được dẫn từ biển sẽ là nhân vật chính ngay khi vào ngôi nhà.
Một hồ bơi kết hợp khu vực BBQ sẽ được bố trí trên mái kết hợp với tán cây xanh vừa giúp giảm nhiệt lượng hấp thụ từ mái xuống , lẫn tối ưu công năng sử dụng cho vị trí theo chúng tôi là nơi hấp dẫn nhất của mọi ngôi nhà. Hồ bơi trên mái là một ý tưởng hay nhất để con người có thể vừa thưởng thức cuộc sống vừa hòa mình vào view biển vùng vịnh Đà Nẵng.







